

项目名称:蠡湖一号别墅
Description
派艺诺 / 精益生产 / 匠心品质
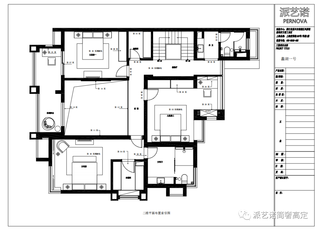
△项目户型平面图


挑高设计,拉伸了整体的空间感,橡木饰面的细腻纹理增添了生活的自然气息。

餐厅延续了整体空间的主色调,混水墙饰面与橙色拼接的餐椅打造出舒适的触感,客餐厅一体化,方便主人与朋友享受美食与生活互动。

L型设计的橱柜充分利用空间的拐角,提升了空间利用率。


洗衣房定制组合柜,不仅满足了日常洗衣的功能,还能收纳卫生用品,闲置用品,从而保持整洁有序的生活环境。

定制绿色床背景,柔和的色调让整个空间显得格外舒适。通透的光线让主人休息时享受生活的惬意、舒适和放松。

衣帽间是品味与个性的展示区,不同的区域,如悬挂区、折叠区和鞋包区等,井然有序,充满高定生活质感。



考虑业主使用需求,量身定制的整体衣帽间,洁净玻璃门,储存空间完整,并提供充裕的更衣空间。

整体组合衣柜与淡雅的光线映衬出宁静的氛围,给人以温馨、自在的感觉。

简约而统一的色调,以及粉色为空间衬托的温暖气息,抛却压力之后的放松与安逸。

定制组合柜中的一抹黄,让人眼前一亮,而整个空间更多注重舒适性和实用性。

榻榻米恰到好处的提升了空间的柔和舒适感,增添房间更多的储物空间。

混水白书桌与亮黄色书椅色彩处理与周到的材质转换,使空间不显得那么沉闷,给人以舒适、自在、阅读与放松并重的感觉。


卫浴室用细细的金属线条勾勒出整体的边框,颜色洁净清爽,带有高级的轻奢感。
派艺诺简奢高定带你体验品质生活,从心灵深处享受恬静与舒适。